Frequently Asked Questions About Renting a Travel Trailer RV Near Loudoun Valley Estates, VA
If I want to rent a travel trailer RV in Loudoun Valley Estates, VA, how can I tell if my vehicle can tow the trailer?
To determine if your vehicle can tow a travel trailer RV, you will need to check its towing capacity. This information can usually be found in the owner's manual or by contacting the vehicle manufacturer. It's essential to ensure that your vehicle's towing capacity meets or exceeds the weight of the travel trailer you intend to rent.
Are there any special driving considerations or techniques I should know when towing a travel trailer RV rental in Loudoun Valley Estates, VA?
When towing a travel trailer RV rental, it's crucial to be aware of its increased length and weight. Take wider turns, allow for extra braking distance, and maintain a safe and steady speed. Be cautious when changing lanes, as the trailer may affect your vehicle's stability. Familiarize yourself with local traffic laws and any specific regulations regarding towing trailers in your area.
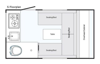
What kind of amenities can I expect in a travel trailer RV rental, and how do they compare to other towable RV rentals in Loudoun Valley Estates, VA?
Travel trailer RV rentals typically offer a variety of amenities to ensure a comfortable experience. These can include a fully equipped kitchen with a refrigerator, stove, microwave, and sink. Bathroom facilities such as a toilet and shower are also common. Other amenities may include air conditioning, heating, cozy sleeping areas, dining spaces, and entertainment options. Comparatively, travel trailers often provide ample space and amenities when compared to other towable RV rentals.
Do I bring my bedding and linens to use in the travel trailer RV rental, and what kind of storage options are available for these items?
Be sure to check the RV listing to find if bedding is included with the rental. Not all owners provide these items, so it's advisable to check with them beforehand. As for storage options, travel trailers offer various compartments and cabinets where you can neatly store your belongings throughout your rental period.
What kind of maintenance or upkeep do I need to perform on the exterior and interior of a travel trailer RV rental during my rental period?
During your rental period, you are not expected to perform maintenance. You should however keep the RV clean and tidy up after use. Keep the exterior free from dirt and debris and clean up spills or messes promptly.
Are there any limitations on where I can park or store a travel trailer RV rental in Loudoun Valley Estates, VA, such as zoning laws or homeowners' association regulations?
Parking or storing a travel trailer RV rental may be subject to local regulations, such as zoning laws or homeowners' association rules. It's important to research and understand any limitations or restrictions that may apply in your specific area. This will help you find suitable parking or storage options for the duration of your rental.
Can I use a generator to power the travel trailer RV's electrical systems, or must I connect to a power source at a campground or RV park?
Travel trailer RV rentals generally have electrical systems that can be powered by either a generator or by connecting to a power source at a campground or RV park. Some rentals may include a generator, while others may require you to provide your own. It's important to discuss this with the RVshare owner to determine the specifics for your rental.
How do I properly level and stabilize a travel trailer RV rental at my campsite or RV park, and what equipment or tools do I need?
Discuss any leveling and stabilizing needs with the owner ahead of your trip. Sharing the details of where you plan to camp will allow them to provide the best guidance.
Are any unique features or amenities available in travel trailer RV rentals that may not be found in other RVs in Loudoun Valley Estates, VA?
Travel trailer RV rentals often come with a range of unique features and amenities. Some trailers may offer slide-out sections that expand the living space when parked. You can expect amenities such as outdoor awnings, entertainment systems, outdoor kitchens, and additional storage compartments. These features enhance the overall comfort and convenience of your travel trailer rental experience.













































