$200
Our RV Rental Advisors can help you match the perfect RV
Request Expert Help2019 Coachmen RV - Freelander 21RS Chevy 4500
"Rashee" RV for rent in Vista, California. This Class C 2019 Coachmen is 24 feet long and can comfortably sleep 5 people. This is the perfect size for ease of drivability/maneuverability.
Hosted by Thad
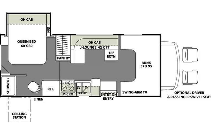
Sleeping Arrangements
Sleeps 5 in 2 beds
RV Features
RV Details
- Year: 2019
- Manufacturer: Coachmen RV
- Make: Freelander
- Model: 21RS Chevy 4500
- Class: Class C Motor Home
- Sleeps: 5
- Length: 24 ft
- Height: 131 ft
- Slides: 1
Drivable Features
- Transmission: Automatic
- Cruise control
- Engine: 6.0L V8
- Seatbelts: 5
- Fuel type: Gas
- Fuel capacity: 57 gal
- Fuel consumption: 12 mpg
- Electrical service: 30 amp
- Dual batteryDual battery unavailable on this rv
- Power steering
- Gross weight: 14,200 lbs
- Dry weight: 10,168 lbs
- Cargo weight: 4,032 lbs
Campsite Essentials
- Electrical Service: 30 amp
- Fresh Water Tank: 30 gal
- Length: 24 ft
- Generator
- Hot & Cold Water
- Solar PanelSolar Panel unavailable on this rv
- InverterInverter unavailable on this rv
Amenities
- Refrigerator
- Kitchen sink
- Shower
- Air conditioning
- Toilet
- Backup camera
- Stove
- TV
Rental Options
Enjoy the RV experience without having to drive to and from your destination.
Your Custom Delivery Location
Rates and Availability
Extended Stay Pricing
Availability
Required Fees
Optional Upgrades
Generator
Mileage
Mileage Cost Estimate
Post-Trip Fees
Any post trip fees incurred, including overages for mileage or generator use, are subject to an administrative fee and any taxes required by law.
Learn more
Things You Should Know
Pick Up Time
Drop Off Time
Rental Rules
- Pet-friendly
- No festivals
- No tailgating
- No smoking
- Minimum renter age of 25
- MUSIC FESTIVALS PROHIBITED (BURNING MAN, COACHELLA, STAGECOACH, ETC): These festivals are strictly prohibited.
Worry-free Services
Cancellation Policy - Standard
Notes
Rental Addendum Agreement:
DURATION: Renter must return the Vehicle to location specified, on the date and time specified in booking agreement. Please note current pick-up, drop-off times, and location are as follows unless special arraignments have been agreed upon by the owne...
2 Reviews
Great experience!
Really enjoyed our trip in this RV! Great new vehicle, works like a charm.
RV Location
RV Tips
Frequently Asked Questions
Owners have the ability to choose between three different cancellation policies: strict, standard, or flexible. You can find the details of the cancellation policy for this RV in the Rules and Policies section.
The RVshare Protection Plan is activated on RV listings by the owner. If this RV is covered you can find the Insurance and Protection price in the Rates and Availability section. The cost for coverage will also be listed on your quote.
Some owners offer discounted rates for weekly or monthly stays. You can find the rates for this listing and if discounts are available in the Rates and Availability section.
Mileage and generator hours that are included in a rental vary by listing. You can view the nightly mileage and generator hours that are included when renting this RV, as well as fees for excess mileage and generator usage, in the Rates and Availability section.











