Currently Unavailable
Our RV Rental Advisors can help you match the perfect RV
Request Expert Help2016 Coachmen RV Apex Ultra-Lite
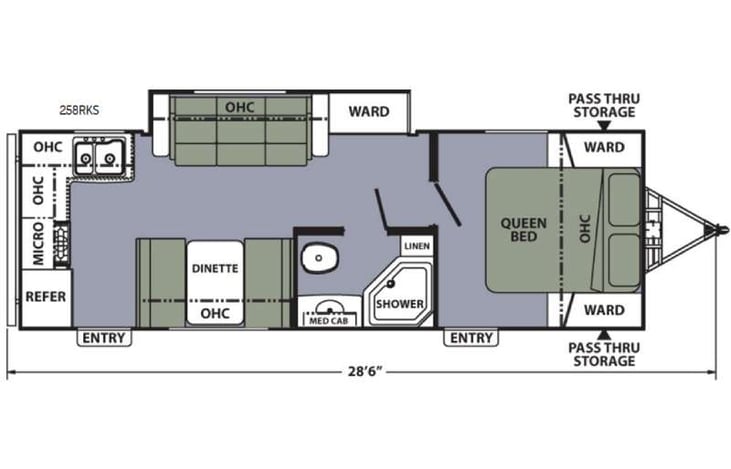
2016 Coachmen RV - Apex Ultra-Lite 258RKS
Ride aboard the Chill Pill...Cozy home away from home. Sleeps 4 comfortably. Everything you need to enjoy your vacation is provided. Television in bedroom and dining room as well as Bluetooth and music inside and out. Well equipped kitchen and bathroom with full size freezer in refrigerator. Queen size bed in bedroom and full size bed in living room.

Hosted by Tammy
New Grammy who loves the beach and the simple life when I'm not working!
Sleeping Arrangements
Sleeps 4 in 2 beds
RV Features
RV Details
- Year: 2016
- Manufacturer: Coachmen RV
- Make: Apex Ultra-Lite
- Model: 258RKS
- Class: Travel Trailer
- Sleeps: 4
- Length: 28 ft
- Height: 12 ft
- Slides: 1
Towable Features
- Gross weight: 6,500 lbs
- Cargo weight: 1,589 lbs
- Dry weight: 4,911 lbs
- Hitch weight: 675 lbs
- Trailer connector typeTrailer connector type unavailable on this rv
- Trailer connector adapter
- Electrical service: 50 amp
- Trailer ball size: 2-5/16"
- Anti-sway provided
- Dual BatteryDual Battery unavailable on this rv
- Hitch provided
- Weight distributing hitch
Campsite Essentials
- Electrical Service: 50 amp
- Length: 28 ft
- Generator
- Hot & Cold Water
- Solar PanelSolar Panel unavailable on this rv
- InverterInverter unavailable on this rv
Amenities
- Refrigerator
- Kitchen sink
- Shower
- Air conditioning
- Toilet
- Backup camera
- Stove
- TV
Rental Options
Enjoy the RV experience without having to drive to and from your destination.
Your Custom Delivery Location
Rates and Availability
Extended Stay Pricing
Availability
Required Fees
Mileage
Mileage Cost Estimate
Post-Trip Fees
Any post trip fees incurred, including overages for mileage or generator use, are subject to an administrative fee and any taxes required by law.
Learn more
Things You Should Know
Pick Up Time
Drop Off Time
Rental Rules
- Pet-friendly
- No festivals
- No tailgating
- No smoking
Worry-free Services
Cancellation Policy - Standard
No Reviews Yet
RV Location
Top Owner Recommendations
- Circle F Dude Ranch Camp•Lake Wales, FL
- River Ranch RV Resort•River Ranch, FL
- Canopy Oaks•Frostproof, FL
RV Tips
Frequently Asked Questions
Owners have the ability to choose between three different cancellation policies: strict, standard, or flexible. You can find the details of the cancellation policy for this RV in the Rules and Policies section.
The RVshare Protection Plan is activated on RV listings by the owner. If this RV is covered you can find the Insurance and Protection price in the Rates and Availability section. The cost for coverage will also be listed on your quote.
Some owners offer discounted rates for weekly or monthly stays. You can find the rates for this listing and if discounts are available in the Rates and Availability section.
Mileage and generator hours that are included in a rental vary by listing. You can view the nightly mileage and generator hours that are included when renting this RV, as well as fees for excess mileage and generator usage, in the Rates and Availability section.















