Currently Unavailable
Our RV Rental Advisors can help you match the perfect RV
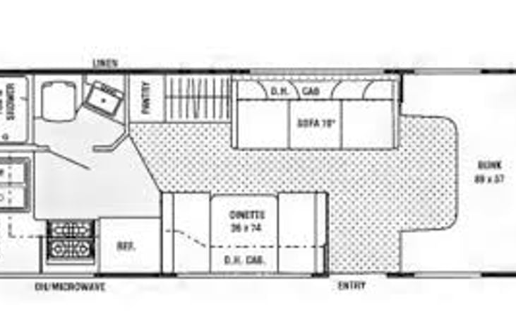
Request Expert Help1998 Catalina 220RK
1998 Coachmen RV - Catalina 220RK
The best RV in the area.

Hosted by Abhishek
Sleeping Arrangements
Sleeps 5
RV Features
RV Details
- Year: 1998
- Manufacturer: Coachmen RV
- Make: Catalina
- Model: 220RK
- Class: Class C Motor Home
- Sleeps: 5
- Length: 27 ft
Campsite Essentials
- Length: 27 ft
- Generator
- Hot & Cold Water
- Solar PanelSolar Panel unavailable on this rv
- InverterInverter unavailable on this rv
Amenities
- Refrigerator
- Kitchen sink
- Shower
- Air conditioning
- Toilet
- Backup camera
- Stove
- TVTV unavailable on this rv
Rental Options
This owner does not offer delivery
Rates and Availability
Availability
Required Fees
Mileage
Mileage Cost Estimate
Post-Trip Fees
Any post trip fees incurred, including overages for mileage or generator use, are subject to an administrative fee and any taxes required by law.
Learn more
Things You Should Know
Pick Up Time
Drop Off Time
Rental Rules
- No pets
- No festivals
- No tailgating
- No smoking
- Minimum renter age of 25
Worry-free Services
Cancellation Policy - Standard
Instant Book
No Reviews Yet
RV Location
RV Tips
Frequently Asked Questions
Owners have the ability to choose between three different cancellation policies: strict, standard, or flexible. You can find the details of the cancellation policy for this RV in the Rules and Policies section.
The RVshare Protection Plan is activated on RV listings by the owner. If this RV is covered you can find the Insurance and Protection price in the Rates and Availability section. The cost for coverage will also be listed on your quote.
Some owners offer discounted rates for weekly or monthly stays. You can find the rates for this listing and if discounts are available in the Rates and Availability section.
Mileage and generator hours that are included in a rental vary by listing. You can view the nightly mileage and generator hours that are included when renting this RV, as well as fees for excess mileage and generator usage, in the Rates and Availability section.















