$140
Our RV Rental Advisors can help you match the perfect RV
Request Expert HelpRV edition Ice Caslte
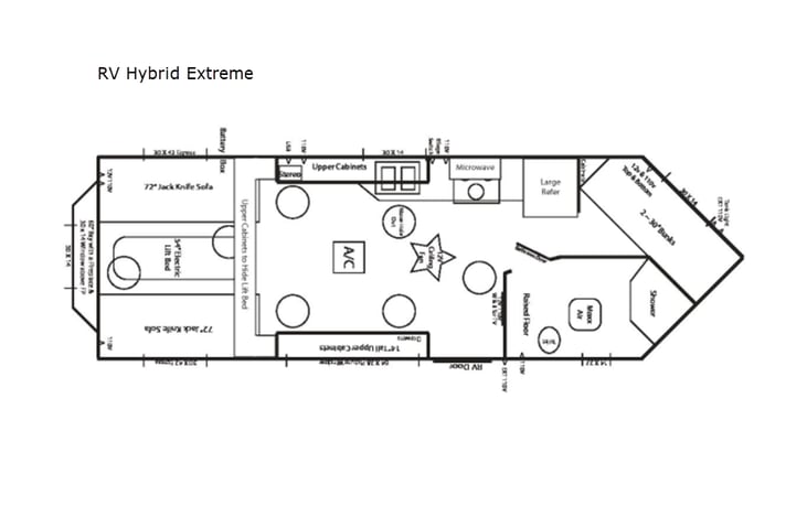
2022 Ice Castle Fish Houses - Ice Castle Fish Houses RV Hybrid Extreme
Rent this Ice castle for summer camping! This RV edition fish house has a lift bed in the back and fold down benches. Up front it has 2 single bunks. This has a water package and fully functional kitchen and bathroom.

Hosted by Scott
Lake Reno Resort and Rentals offers a range of accommodations and activities to help you fully enjoy the great outdoors. If you're looking for a cozy cabin, a spacious camping site, a pontoon, camper or fish house rental, we've got you covered. Whether you're fishing for a large walleye, roasting marshmallows over a campfire, or taking a refreshing swim in the lake, we strive to provide a memorabl...
Sleeping Arrangements
Sleeps 6
RV Features
RV Details
- Year: 2022
- Manufacturer: Ice Castle Fish Houses
- Make: Ice Castle Fish Houses
- Model: RV Hybrid Extreme
- Class: Travel Trailer
- Sleeps: 6
- Length: 25 ft
Campsite Essentials
- Length: 25 ft
- GeneratorGenerator unavailable on this rv
- Hot & Cold Water
- Solar PanelSolar Panel unavailable on this rv
- InverterInverter unavailable on this rv
Amenities
- Refrigerator
- Kitchen sink
- Shower
- Air conditioning
- Toilet
- Backup cameraBackup camera unavailable on this rv
- Stove
- TV
Rental Options
Enjoy the RV experience without having to drive to and from your destination.
Your Custom Delivery Location
Rates and Availability
Availability
Required Fees
Generator
Mileage
Mileage Cost Estimate
Post-Trip Fees
Any post trip fees incurred, including overages for mileage or generator use, are subject to an administrative fee and any taxes required by law.
Learn more
Things You Should Know
Pick Up Time
Drop Off Time
Rental Rules
- Pet-friendly
- No festivals
- No tailgating
- No smoking
Worry-free Services
Cancellation Policy - Standard
No Reviews Yet
RV Location
RV Tips
Frequently Asked Questions
Owners have the ability to choose between three different cancellation policies: strict, standard, or flexible. You can find the details of the cancellation policy for this RV in the Rules and Policies section.
The RVshare Protection Plan is activated on RV listings by the owner. If this RV is covered you can find the Insurance and Protection price in the Rates and Availability section. The cost for coverage will also be listed on your quote.
Some owners offer discounted rates for weekly or monthly stays. You can find the rates for this listing and if discounts are available in the Rates and Availability section.
Mileage and generator hours that are included in a rental vary by listing. You can view the nightly mileage and generator hours that are included when renting this RV, as well as fees for excess mileage and generator usage, in the Rates and Availability section.












