Currently Unavailable
Our concierge team can help you match the perfect RV
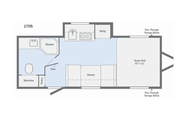
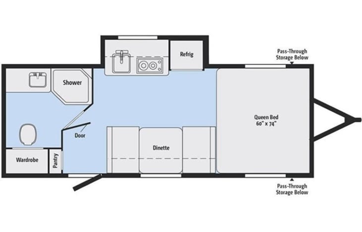
Request Expert Help2018 Winnebago Industries Towables - Winnie Drop 170S
The camper comes with about everything you need for a fun trip!

Hosted by Christopher
New to the camping world!
Sleeping Arrangements
Sleeps 4
RV Features
RV Details
- Year: 2018
- Manufacturer: Winnebago Industries Towables
- Make: Winnie Drop
- Model: 170S
- Class: Travel Trailer
- Sleeps: 4
- Length: 20 ft
- Height: 10 ft
- Slides: 1
Towable Features
- Gross weight: 3,800 lbs
- Cargo weight: 986 lbs
- Dry weight: 2,800 lbs
- Hitch weight: 315 lbs
- Trailer connector typeTrailer connector type unavailable on this rv
- Trailer connector adapter
- Electrical service: 30 amp
- Anti-sway providedAnti-sway provided unavailable on this rv
- Dual BatteryDual Battery unavailable on this rv
- Hitch provided
- Weight distributing hitchWeight distributing hitch unavailable on this rv
Campsite Essentials
- Electrical Service: 30 amp
- Fresh Water Tank: 30 gal
- Length: 20 ft
- GeneratorGenerator unavailable on this rv
- Hot & Cold Water
- Solar PanelSolar Panel unavailable on this rv
- InverterInverter unavailable on this rv
Amenities
- Refrigerator
- Kitchen sink
- Shower
- Air conditioning
- Toilet
- Backup cameraBackup camera unavailable on this rv
- Stove
- TV
Rental Options
Enjoy the RV experience without having to drive to and from your destination.
Your Custom Delivery Location
Rates and Availability
Extended Stay Pricing
Availability
Required Fees
Optional Upgrades
Mileage
Post-Trip Fees
Any post trip fees incurred, including overages for mileage or generator use, are subject to an administrative fee and any taxes required by law.
Learn more
Things You Should Know
Pick Up Time
Drop Off Time
Rental Rules
- No pets
- No festivals
- No tailgating
- No smoking
Worry-free Services
Cancellation Policy - Standard
8 Reviews
This rental was great. Exactly what we needed for the weekend.
Christopher was very easy to work with and the travel trailer was everything we needed for our long weekend in Austin.
Glad you enjoyed! Thank you!
Great for a small family, great price, great communication. This RV was super easy to pull and handled very well in all situations. Will definitely use this RV again!
The camper was exactly as depicted. It had everything needed to head right out on the road. All equipment was in good working order. Chris is a great communicator, very open to help with questions thru out the rental. We would definitely rent from him again.
I spent a week in this little Winnie while visiting family for Thanksgiving and the entire experience was awesome! Christopher was always super friendly and quick to answer any questions I had, both before and during my stay. He delivered to my destination, set everything up, walked me through all the bells and whistles and had me staged for the perfect week.
We are a Neurodivergent Family of 4 and our 7 year twin boys had been begging to go Glamping. So we decided to rent a camper and drive from Texas to Colorado and travel around the Rockies. This was our 1st experience w/a camper & campgrounds.
RV Location
RV Tips
Frequently Asked Questions
Owners have the ability to choose between three different cancellation policies: strict, standard, or flexible. You can find the details of the cancellation policy for this RV in the Rules and Policies section.
The RVshare Protection Plan is activated on RV listings by the owner. If this RV is covered you can find the Insurance and Protection price in the Rates and Availability section. The cost for coverage will also be listed on your quote.
Some owners offer discounted rates for weekly or monthly stays. You can find the rates for this listing and if discounts are available in the Rates and Availability section.
Mileage and generator hours that are included in a rental vary by listing. You can view the nightly mileage and generator hours that are included when renting this RV, as well as fees for excess mileage and generator usage, in the Rates and Availability section.










